Wohnung 10 - Remise am Beek

Wohnung 10 - Remise am Beek     

 

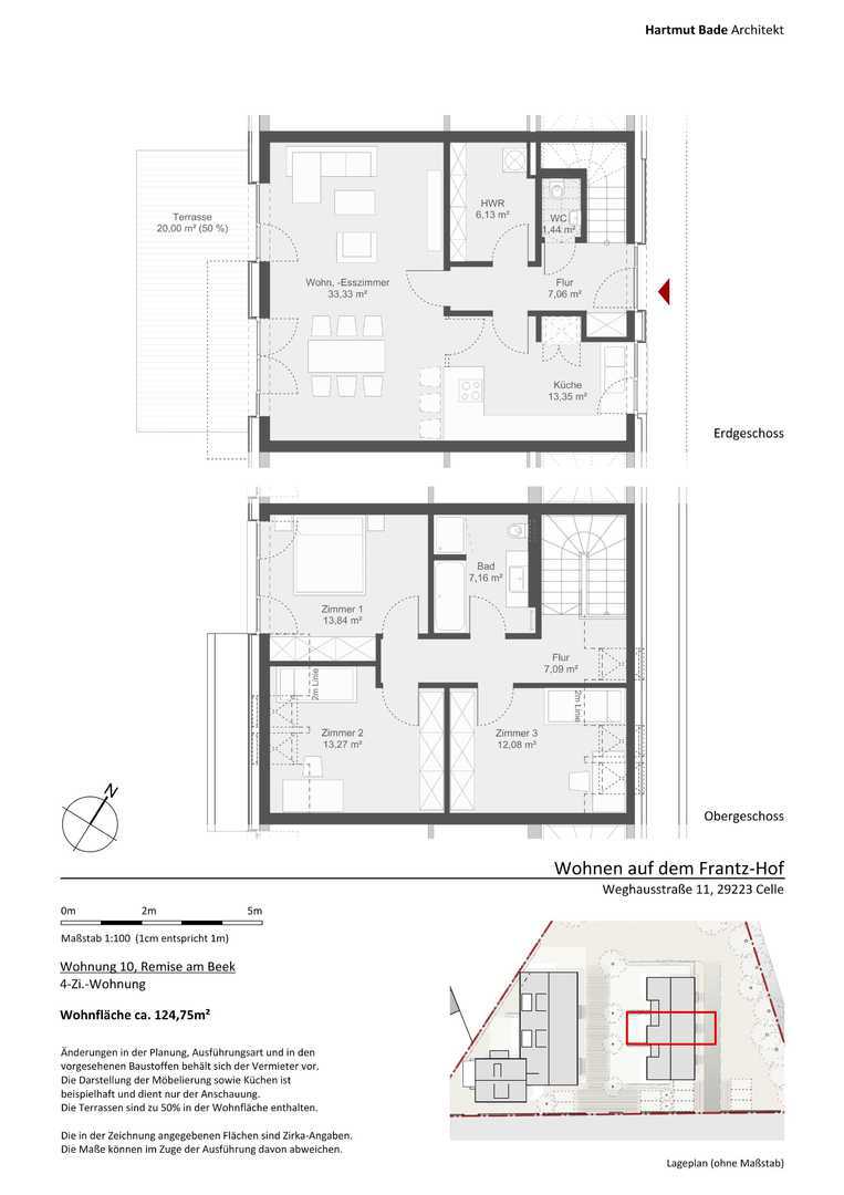
Die Wohnung bietet als Vierzimmerwohnung den Wohnkomfort eines Einfamilienhauses mit separatem Eingang und eigener Hausnummer. Der Eingang von der Bachseite im Nordosten erschließt das Haus. Von hier hat man einen herrlichen Blick über die Wiesen und Felder. Dem Flur schließen sich ein Gäste - WC und ein Hauswirtschaftsraum an. In südwestlicher Ausrichtung befinden sich, lichtdurchflutet durch große bodentiefe Fensterelemte, der Wohn- und Essbereich. Die Küche schließt sich dem Esszimmer an. Ebenfalls in südwestlicher Ausrichtung befindet sich die Terrasse mit einem eigenen Gartenbereich. Im Obergeschoss befinden sich neben einem Badezimmer mit Dusche und Badewanne drei weitere Räume. Der komplett ausgebaute Dachboden kann als zusätzlicher Abstellraum genutzt werden.

 

Ausstattung:

- moderne, zeitlose Architektur

- Fußbodenheizung, zimmerweise regelbar

- bodentiefe, hochwertige dreifach verglaste Fenster

- eigener Gartenanteil

- hochwertige Klinkerfassade abgesetzt durch Holzelemente

- KfW Effizienzhaus 55

- komfortables Designbad

- robuste Echtholzdielen aus Eiche

- attraktive Bodenfliesen in Küche und Bad

- luftige Deckenhöhe

- umweltfreundliche Holzpelletheizung

Wohn- / Esszimmer: 33,33 qm
Küche: 13,35 qm
Flur EG

7,06 qm

Flur OG 7,09 qm
Badezimmer 7,16 qm
Gäste - WC 1,44 qm
HWR 6,13 qm
Zimmer 1 13,84 qm
Zimmer 2 13,27 qm
Zimmer 3 12,08 qm
Terrasse 20 qm, davon 50% WF 10,00 qm
Gesamt

124,75 qm

Mietgrundriss Wohnung 10 - Remise am Beek
078_170113_Mietgrundrisse NB_WHG 10.pdf
PDF-Dokument [161.2 KB]
Druckversion | Sitemap
© Fabian Heins