Wohnung 8 - Heuboden

Wohnung 8 - Heuboden     

 

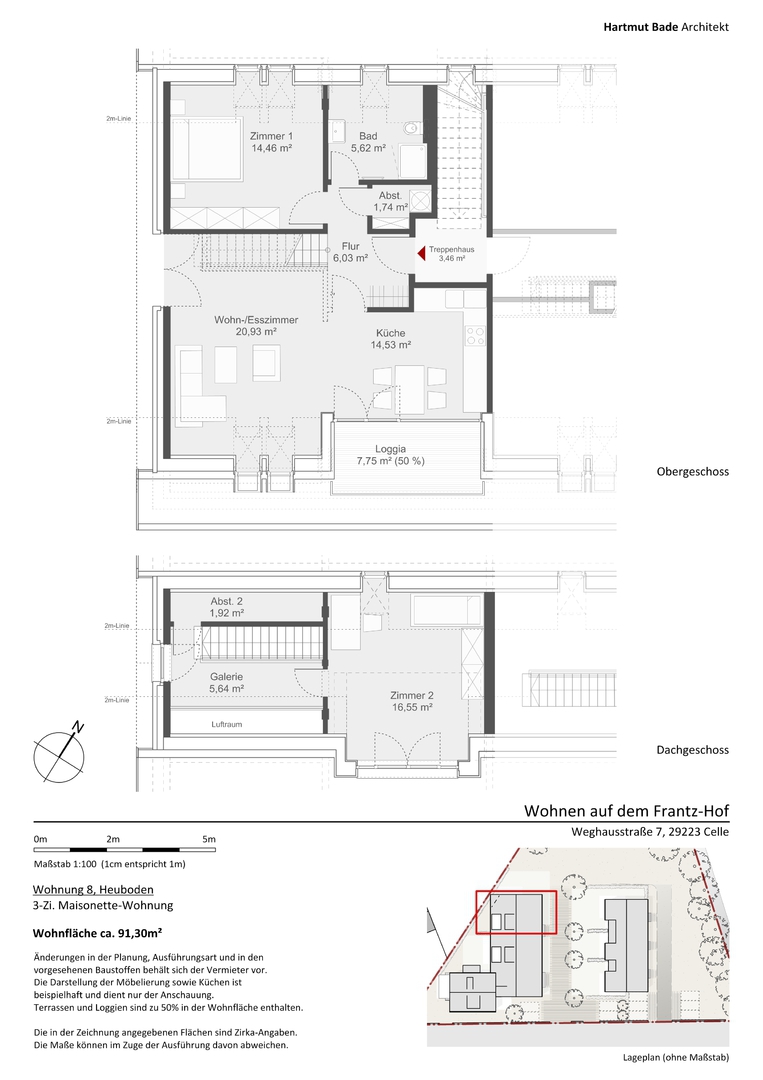
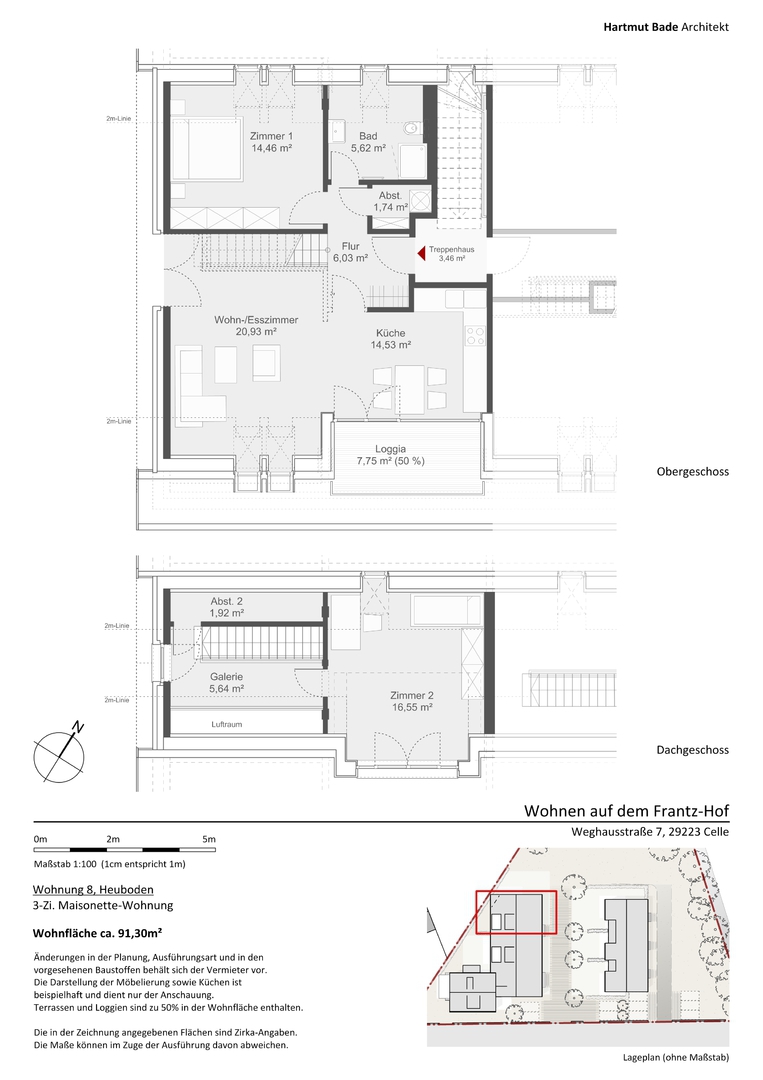
Die Wohnung ist eine Dreizimmerwohnung auf dem ehemaligen Heuboden und erstreckt sich als Maisonette über das Ober- und Dachgeschoss. Der Eingang liegt auf der Hofseite im Nordosten. Hinter dem Flurbereich mit Garderobe und Abstellraum befindet sich der Wohn - Essbereich sowie die Küche mit großen bodentiefen Fenstern Richtung Südost und einer modernen Loggia. In Nordost Ausrichtung befinden sich ein weiteres Zimmer sowie das Badezimmer. Über die Treppe erreichen sie die Galerie im Dachgeschoss mit einem Abstellraum an den sich ein weiteres Zimmer mit großer Gaube und Fenstern in Richtung Südosten anschließt. Die Wohnung verfügt zusätzlich über einen weiteren Abstellraum im Gebäude außerhalb der Wohnung mit ca. 3 qm.

 

Ausstattung:

- moderne, zeitlose Architektur

- hochwertige Klinkerfassade abgesetzt durch Holzelemente

- KfW Effizienzhaus 55

- komfortables Designbad

- moderne Loggia

- robuste Echtholzdielen aus Eiche

- attraktive Bodenfliesen in Küche und Bad

- luftige Deckenhöhe mit Galerie

- bodentiefe, hochwertige, dreifach verglaste Fenster

- umweltfreundliche Holzpelletheizung

Wohn- / Esszimmer: 20,93 qm
Küche: 14,53 qm
Flur: 6,03 qm
Badezimmer: 5,62 qm
Zimmer 1: 14,46 qm
Zimmer 2: 16,55 qm
Abstellräume: 3,66 qm
Galerie: 5,64 qm
Loggia 7,72 qm davon 50% WF 3,86 qm
Gesamt: 91,30 qm
Grundriss Wohnung 8 - Heuboden
078_170113_Mietgrundrisse KST_WHG 8.pdf
PDF-Dokument [145.0 KB]
Druckversion | Sitemap
© Fabian Heins