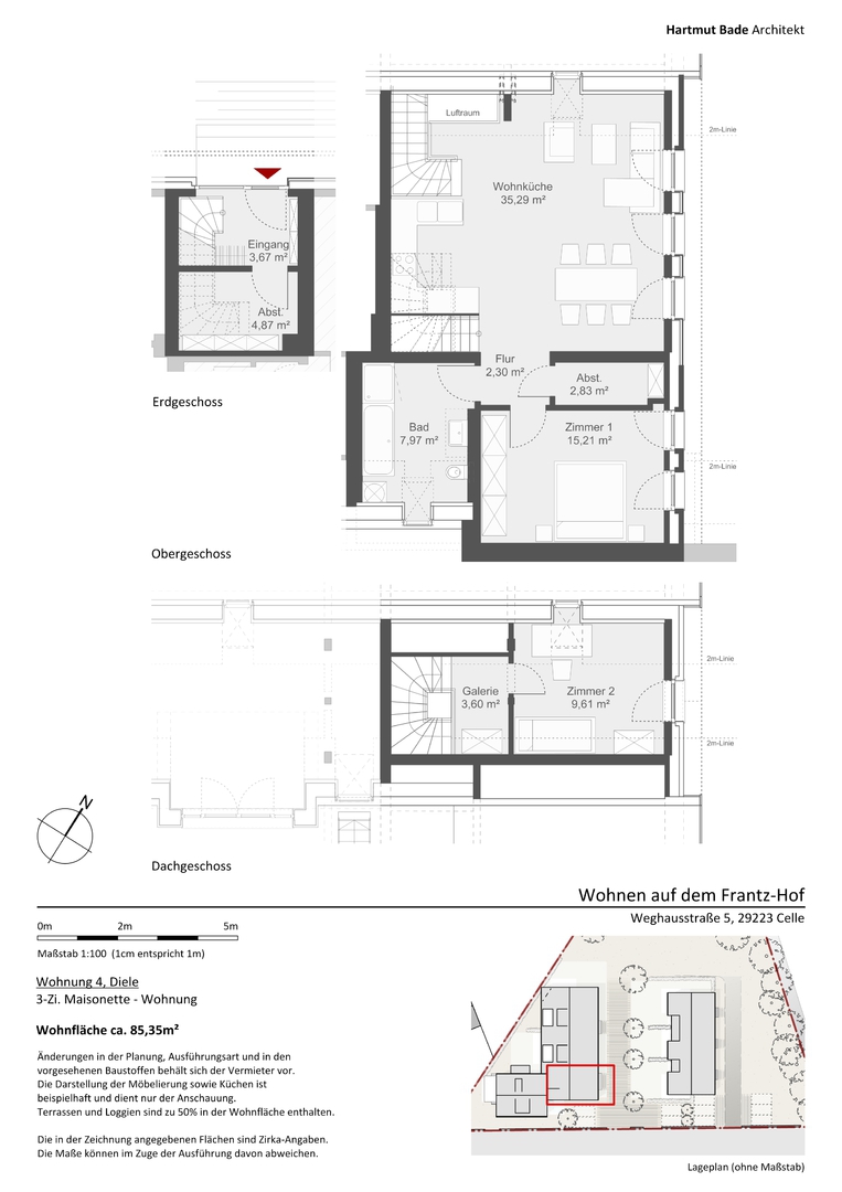
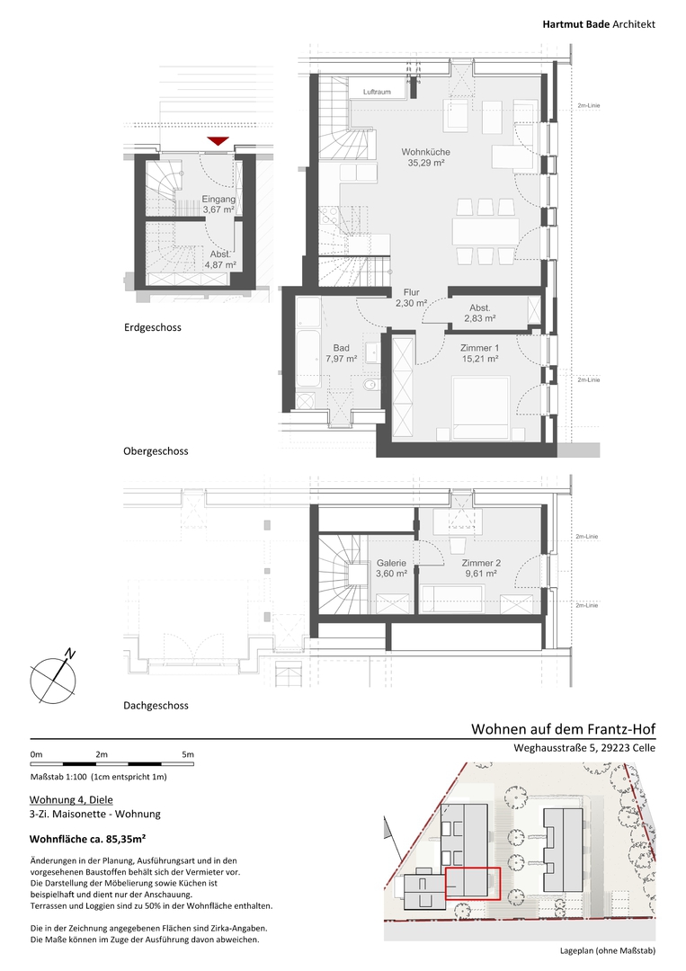
Wohnung 4 - Diele

Wohnung  4 - Diele     

 

Die Wohnung ist eine Dreizimmerwohnung als Maisonette mit eigenem Eingang. Im Erdgeschoss befindet sich eine Garderobe mit anschließendem separatem Abstellraum.Durch die offene Galerie zum Obergeschoss wirkt der Eingangsbereich sehr großzügig. Die Wohnung erstreckt sich mit einem offenen Grundriss über drei Etagen.Im Obergeschoss finden Sie einen modernen großzügigen Wohn - Essbereich mit offener Wohnküche. An den Essbereich schließt sich ein privater Wohnbereich mit Schlaf- oder Arbeitszimmer sowie einem Bad und  einem weiterem Abstellraum an. Im Dachgeschoss, welches über eine Treppe aus dem Wohnbereich erschlossen ist, befindet sich eine offene Galerie sowie ein weiteres Zimmer.

 

Ausstattung:

- moderne, zeitlose Architektur

- hochwertige Klinkerfassade abgesetzt durch Holzelemente

- KfW Effizienzhaus 55

- komfortables Designbad

- robuste Echtholzdielen aus Eiche

- attraktive Bodenfliesen in Küche und Bad

- luftige Deckenhöhe mit Galerie

- dreifachverglaste Fenster

- umweltfreundliche Holzpelletheizung

Eingang: 3,67 qm
Wohn- / Esszimmer: 35,29 qm
Bad: 7,97 qm
Flur:

2,30 qm

Zimmer 1: 15,21 qm
Zimmer 2: 9,61 qm
Abstellräume: 7,70 qm
Galerie: 3,60 qm
Gesamt: 85,35 qm
Mietgrundriss Wohnung 4 - Diele
078_170113_Mietgrundrisse KST_WHG 4.pdf
PDF-Dokument [145.5 KB]
Druckversion | Sitemap
© Fabian Heins