Wohnung 6 - Diele

Wohnung 6 - Diele     

 

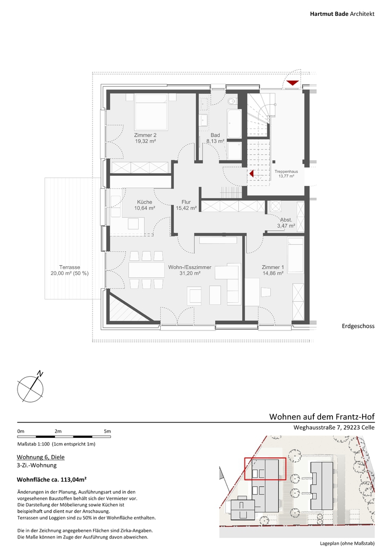
Die Wohnung ist eine Dreizimmerwohnung im Erdgeschoss der ehemaligen Diele. Der Eingang liegt auf der Hofseite im Nordosten. Hinter dem Flurbereich mit Garderobe und Abstellraum befindet sich der größzügige Wohn - Essbereich mit großen bodentiefen Fenstern Richtung Südost sowie einem Ausgang zur Terrasse in Richtung Südwesten. Zu dieser Wohnung gehört ein eigener Gartenbereich. In Nordostausrichtung befinden sich das  Schlafzimmer sowie ein Badezimmer. Ein weiteres Zimmer liegt im Südosten mit Ausrichtung zum Garten. Die Wohnung verfügt zusätzlich über einen weiteren Abstellraum im Gebäude mit ca. 6 qm.

 

Die Wohnung kann barrierefrei gestaltet werden.

 

Ausstattung:

- moderne, zeitlose Architektur

- Fußbodenheizung, zimmerweise regelbar

- bodentiefe, hochwertige Fenster

- eigener Gartenanteil

- hochwertige Klinkerfassade abgesetzt durch Holzelemente

- KfW Effizienzhaus 55

- komfortables Designbad

- robuste Echtholzdielen aus Eiche

- attraktive Bodenfliesen in Küche und Bad

- luftige Deckenhöhe

- dreifachverglaste Fenster

- umweltfreundliche Holzpelletheizung

Wohn- / Esszimmer: 31,20 qm
Küche: 10,64 qm
Flur: 15,42 qm
Badezimmer: 8,13 qm
Zimmer 1: 19,32 qm
Zimmer 2: 14,86 qm
Abstellraum: 3,47 qm
Terrasse 20 qm, davon 50 % WF: 10,00 qm
Gesamt: 113,04 qm
Grundriss Wohnung 6 - Diele
078_170113_Mietgrundrisse KST_WHG 6.pdf
PDF-Dokument [138.5 KB]
Druckversion | Sitemap
© Fabian Heins